Notes from the Studio, Vol. 12

01. Function Meets Form in the Kitchen

A kitchen layout should feel intuitive — like it was always meant to work that way. But getting there is a blend of lifestyle design and technical reality.

At Studio Isaac, we start with how you live. Do you cook most nights? Do multiple people cook at once? Is your kitchen a morning hub for coffee and backpacks, or more of a quiet, chef-forward space? These questions help us define zones: prep, cooking, cleanup, storage, and (often) a “landing” area for daily life.

Then we look at what’s possible in the space. Kitchens are technical rooms, so constraints matter:

  • Plumbing: Moving a sink or dishwasher is doable, but it affects budget and scope.

  • Venting: Range hood placement and duct runs often shape where cooking can happen.

  • Windows: Sill heights can determine if you can run counter beneath, or where upper cabinets can go.

  • Structure: Load-bearing walls, columns, and ceiling beams can limit openings or island placement.

  • Clearances: Walkways, appliance swings, and seating need real breathing room.

From there, we design a layout that balances flow and function. Sometimes that means a classic work triangle; other times it’s a more modern “work zone” approach with dedicated stations (coffee, baking, pantry, bar).

We also consider where things shouldn’t happen — like an island that becomes a bottleneck, a fridge location that interrupts circulation, or a trash can that’s always blocked.

We treat layout as the foundation of a kitchen that feels effortless. When the planning is right, everything else — cabinetry, finishes, lighting — lands beautifully.

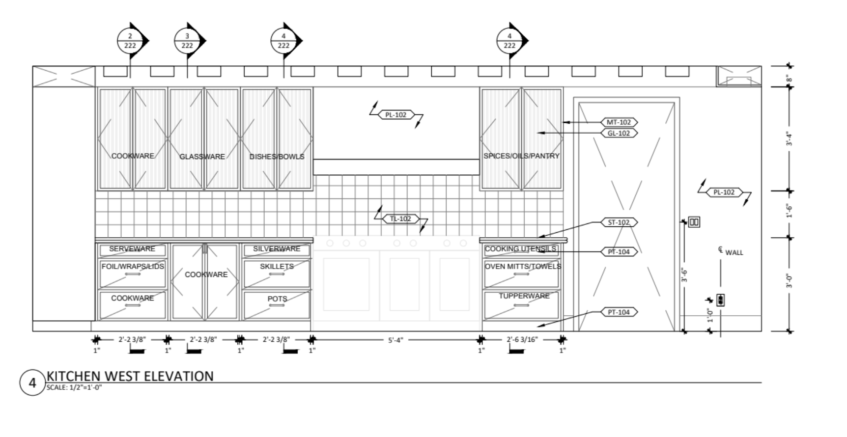
The elevation of a kitchen where the existing range was staying in the same place. Here’s a photo of the resulting kitchen:


02. Appliance Language, Decoded

Appliances are among the first categories we like to lock in during design, because they influence nearly every other kitchen decision—from cabinetry sizes to electrical and ventilation.

Here are a few common terms for selecting appliances:

  • Panel-ready: The appliance is designed to accept a custom cabinet panel, so it visually disappears. Common for dishwashers and refrigerators.

  • Counter-depth: A refrigerator that sits closer to flush with cabinetry (less protrusion), creating a cleaner look.

  • Dual-fuel range: Typically a gas cooktop + electric oven, combining live-flame cooking with more consistent baking.

  • Induction: Electric cooking that uses magnetic energy to heat the pan directly — fast, precise, and cooler to the touch.

  • Speed oven: Often a microwave/convection hybrid that heats quickly and can crisp like an oven.

Beyond terminology, we plan around the practical realities:

  • Ventilation requirements (and where ductwork can run)

  • Electrical loads and dedicated circuits

  • Gas lines and shutoff access

  • Appliance dimensions that affect cabinet sizing and filler panels

  • Lead times (some appliances can take months)

We also help clients think through what matters most: Do you have a large family and require a larger fridge capacity? Are you a serious cook who needs high-output burners and a powerful hood? Do you want a kitchen that reads more like furniture — where appliances visually recede?

The best appliance plan is one that supports your routines and priorities, without letting specs dominate the design. Our job is to translate the technical requirements into a kitchen that feels cohesive, elevated, and easy to live in.

One of our favorite ranges from Fisher & Paykel in our Lavallette project. Brings a pop of color into the space while offering serious burner output. Photo by Max Lemoine.


03. Cabinet Door Details

Cabinet doors may seem like a small decision, but they’re a major visual cue. They establish the home’s design language — modern, classic, transitional — and they affect cost, detailing, and construction.

A few common door styles and terms:

  • Slab / Flat-panel: A smooth, unframed door. Minimal and modern; beautiful in wood, lacquer, or matte finishes.

  • Shaker: A framed door with a recessed center panel. Timeless, versatile, and works across styles.

  • Inset: Doors sit flush inside the cabinet frame. This creates a furniture-like look and requires high precision (often higher cost).

  • Full overlay: Doors cover most of the cabinet frame for a cleaner face and slightly more storage access.

  • Partial overlay: More of the frame shows; often a more traditional look.

Additional design details that clients don’t always realize:

  • Rail/stile width (the thickness of the frame on a shaker door)

  • Edge profiles (square vs. softened)

  • Reveal lines (the spacing between doors/drawers)

  • Drawer style (5-piece drawer fronts vs. slab)

  • Hardware placement and how it reads across a wall of cabinetry

  • Finish and sheen (matte, satin, lacquer, stained wood)

At Studio Isaac, we guide clients toward door styles that make sense for the home’s architecture and the way they want the kitchen to feel. Trends aside, we want cabinetry that looks quietly resolved and holds up beautifully over time.

 

If you enjoyed reading this, consider getting Notes from the Studio straight to your inbox.

Subscribe to our newsletter below:

Thank you for subscribing!
Next
Next

Notes from the Studio, Vol. 11